台北市松山法拍大樓
首頁
│
桃園房屋
│
桃園房子
│
申請房仲網站
桃園房屋出售
桃園房屋出租
桃園土地出售
桃園土地出租
桃園法拍屋
桃園法拍地
桃園房仲
桃園房地產委託
關鍵字
現在位置:
首頁
>
台北法拍屋
>
松山法拍屋
>
台北市松山法拍大樓-台北市松山區光復北路35號4樓
最後更新:14天前
檢舉不實
│
列印
│
物件留言
|
觀看地圖
台北市松山法拍大樓
台北市松山法拍大樓
房屋資料
案名
松山區 光復北路 【國林光復大樓】
案號
114黃18075 114/11/19 (三) 14:30
地址
台北市松山區光復北路35號4樓
台北市松山區光復北路35號4樓
社區/大樓
國林光復大樓
最新交易狀態
待標中
售價
售
5840萬
房屋類型
大樓
總登記坪數
78.33 坪
格局
屋齡
32年
每坪單價
74.56萬/坪
公設比
車位
沒有車位
座向
無障礙環境
沒有
法拍屋
本物件是法拍屋
拍次 : 第一拍 部份點交
開標日期 : 2025/11/19 (三) 14:30
建物所在樓層
4樓/共12樓
管理費
管委會
有
中庭
電梯
有
是否為凶宅
不是
300公尺內嫌惡設施
面前道路
面寬
縱深
邊間
是
房屋銷售來源
不動產經紀人/專業仲介
房屋特色
【法院筆錄內容】
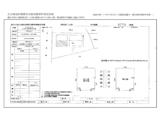
1‧4773、4779建號建物現場查封時債務人公司法定代理人在場稱為自用,無出租,無漏水,地震後有小裂痕,結構無受損,故本件拍定後點交。
2‧4386建號建物為地下二樓車位,車位係機械式(塔式),無固定車位,出入口位於一樓,拍定後不點交,雖係拍賣應有部分,因停車位為類似區分所有建物,可獨立使用,故建物共有人無優先承買權。
3‧拍賣標的經鑑價機關查相關主管機關後,並無發生非自然死亡情形,亦無發生過火災事件,亦非屬列管之海砂屋、輻射屋、地震受損屋,惟建物實際狀況仍須經專業人員辦理相關鑑定及偵測始能確認是否為海砂屋、有無輻射、有無地震受創,應由拍定人自行查明,請應買人注意。
《拍賣抵押物》
【保證金】
1168萬
【拍賣履歴】
一拍2025/11/19底標價格5840萬
二拍底標價格4672萬
三拍底標價格3737.6萬
四拍底標價格2990.1萬
【焦點法拍履歴】
👩🏻⚖️從業二十年以上經驗|競競業業|正派經營
🎯投標準備⇥法拍流程說明|標單填寫|案件現場勘查有無特殊情事|成本評估分析
💰銀行貸款⇥法拍物件估價|投標人財力評估|銀行代墊款協助辦理|最高八成
🏡拍定得標⇥強制執行書狀、履勘陳報書狀往返|債務人搬遷協商|遺留物造冊查估
🎁委託代標⇥免費|委託代標未得標⇥免費
🏢鑫創資產管理有限公司
顏麗杏0911-965339營業員證號:(101)登字第212862號
連真甄0909-031993營業員證號:(101)登字第192002號
更多物件☞焦點法拍
經紀人李彥槿:109北市經證字第02110號
坪數說明
建物登記總坪數
78.33
土地登記總坪數
9.48
主建物坪數
45.11
停車位坪數
附屬建物坪數
公共設施坪數
33.22
增建坪數
周邊環境
生活機能
鄰近交通
鄰近地標
公園綠地
鄰近學區
捷運站
房屋聯絡人資訊
聯絡人姓名
小顏
(煩請告知聯絡人,您是在889房屋網看到這則廣告,真摯感恩您的幫忙)
手機
0911-965-339(小顏)
電子信箱
leysen137@gmail.com
Skype通話
Line加入好友
所屬公司名稱
鑫創資產管理有限公司
公司電話
公司傳真
公司地址
新北市新莊區中環路二段423號一樓
網 址
http://www.1314home.tw
贊助商廣告
台北市松山法拍大樓
松山大樓法拍-1
松山大樓法拍-2
松山大樓法拍-3
松山大樓法拍-4
松山大樓法拍-5
松山大樓法拍-6
松山大樓法拍-7
松山大樓法拍-8
松山大樓法拍-9
松山大樓法拍-10
松山大樓法拍-11
觀看地圖
到Google查看地圖
到Google查看街景
黃金熱銷物件
松山三民路35巷1
大樓
74.76 坪
售6103萬
大安區光復南路29
大樓
73.28 坪
售1億
大安區仁愛路三段2
大樓
48.66 坪
售4238萬6000元
大安區仁愛路三段2
大樓
48.66 坪
售4238萬
大同區重慶北路三段
大樓
59.89 坪
售2899萬
相似物件
松山光復北路35號
大樓/0房
78.33 坪
售5840萬
大安區大安路一段1
大樓/0房
58.32 坪
售6010萬6000元
大安區大安路一段1
大樓/5房
58.32 坪
售6011萬
松山光復北路35號
大樓/0房
78.33 坪
售5840萬
松山光復北路35+
大樓/0房
78.33 坪
售5840萬
物件留言
請注意,如果您詢問的內容與物件不相符合或是廣告,經過審核,系統將會直接刪除您的發問內容
檢舉不實
松山法拍華廈
│
松山法拍電梯大廈
│
松山法拍電梯大樓
│
松山法拍大樓
│
松山法拍大廈
│
松山法拍電梯華廈
│
松山法拍透天
│
松山法拍透天厝
│
松山法拍透天別墅
│
松山法拍透天店面
│
松山法拍大樓店面
│
松山法拍公寓
│
松山法拍店面
│
松山法拍套房
│
松山法拍辦公室
│
松山法拍豪宅
│
松山法拍樓中樓
│
松山法拍農舍
│
松山法拍國宅
│
松山法拍辦公大樓
│
松山法拍別墅
│
松山法拍電梯別墅
│
松山法拍廠房
│
松山法拍廠辦
│
松山法拍工業廠房
│
松山法拍中古屋
│
松山法拍新成屋
│
松山法拍成屋
│
松山法拍電梯透天
│
松山法拍仲介
│
松山法拍房仲
│
●電話:07-7963288 ●電子信箱:
服務信箱
本網站保留一切權利,非經正式書面同意,禁止轉貼節錄。建議瀏覽解析度1024*768。
資料處理中,請稍後...
請注意:此案件已下架