房屋資料
案名 【安南_車墅】【1530萬】單純到只有一個鄰居/(預售)建商 案號
地址 台南市安南區本原街三段
最新交易狀態帶看中售價
1530萬
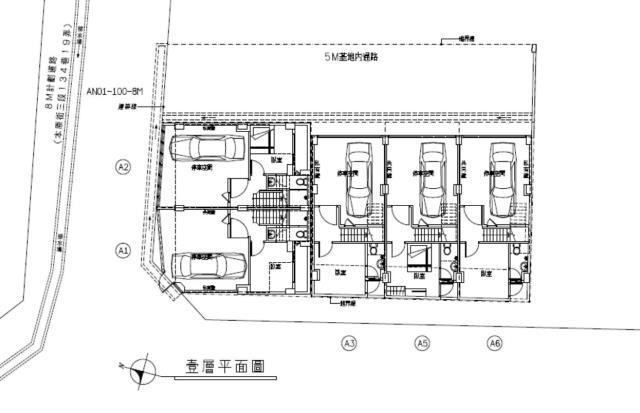
房屋類型 透天_別墅 總登記坪數 49.9 坪
格局4房,2廳,5衛,3陽台,1廚房屋齡2年
每坪單價30.66萬/坪公設比
車位室內車庫座向朝東
無障礙環境沒有法拍屋 本物件不是法拍屋
建物所在樓層1-4樓管理費0
管委會沒有中庭沒有
電梯 沒有 是否為凶宅 不是
300公尺內嫌惡設施 面前道路 8米路
面寬 5.3米 縱深
邊間房屋銷售來源不動產經紀人/專業仲介
房屋特色
【安南_車墅】【1530萬】

單純到只有一個鄰居/(預售)建商即將完工邊間車墅

.

___________________【買一個家】_

.

不是買左邊就是買右邊

雙拼格局任君選擇

買房子就是要看得舒適

舒適~~這就是啦

.

___________________【惜福專銷】_

.

【多少錢】售1530萬~~您出價我處理

【在哪裡】台南市安南區本原街三段134巷

【地多大】地坪23.05坪

【房子呢】建坪49.9坪

【有幾樓】1-4樓

【有幾房】4房2廳5衛

【幾歲啦】全新即將完工

【有多寬】面寬約5.3米

【向哪邊】朝東

【車停哪】獨立車庫

【門口咧】8米路

【讀書呢】海東國小,安南國中

.

___________________【有啥特色】_

.

建商第一手,間間套房,有孝親房

建商5年防水保固,車庫預留特斯拉充電樁管

廚房配用櫻花廚具,全棟衛浴採用高級德瑞克

臨近61快速道路、國八、台江大道,交通便

.

___________________【價錢可喬嗎】_

.

【承辦】林錫福(惜福)/0987673385

【公司】住商不動產/湖美天河加盟店

【經紀】翔陽廣告行銷有限公司

.

___________________【或您有房屋要賣】_

.

【住商惜福】歡迎房地不動產/委託從心開始

【住商惜福】您們的一通電話/圓您一屋幸福

.

___________________【凡專任委託三個月以上者】_

.

【1】售屋期間.管理費用由我支付.至成交交屋日為止

【2】房屋需清潔或油漆.費用由我代墊.未售出我吸收

【3】透天別墅空屋者.配合專人駐場.廣告開銷一手包
坪數說明
建物登記總坪數49.9土地登記總坪數23.05
主建物坪數49.9停車位坪數
附屬建物坪數公共設施坪數
增建坪數
周邊環境
生活機能鄰近交通
鄰近地標公園綠地
鄰近學區捷運站
房屋聯絡人資訊
聯絡人姓名林錫福(惜福)
(煩請告知聯絡人,您是在889房屋網看到這則廣告,真摯感恩您的幫忙)
手機
0987-673-385(林錫福(惜福))
電子信箱linhsifu@hotmail.com
Skype通話 Line加入好友
所屬公司名稱住商不動產-湖美天河加盟店
公司電話0987673385公司傳真06-2585389
公司地址台南市中西區中華西路二段508號
網 址http://www.惜福房屋.tw

贊助商廣告
買房,買屋,買房子
台南安南透天
台南透天-1
台南透天-1
台南透天-2
台南透天-2
台南透天-3
台南透天-3
台南透天-4
台南透天-4
台南透天-5
台南透天-5
台南透天-6
台南透天-6
台南透天-7
台南透天-7
台南透天-8
台南透天-8
台南透天-9
台南透天-9
台南透天-10
台南透天-10
台南透天-11
台南透天-11
台南透天-12
台南透天-12
台南透天-13
台南透天-13
台南透天-14
台南透天-14
台南透天-15
台南透天-15
觀看地圖
黃金熱銷物件
相似物件

物件留言
請注意,如果您詢問的內容與物件不相符合或是廣告,經過審核,系統將會直接刪除您的發問內容
等待圖示
檢舉不實
等待圖示
●電話:07-7963288  ●電子信箱:服務信箱

本網站保留一切權利,非經正式書面同意,禁止轉貼節錄。建議瀏覽解析度1024*768。