台南市安平大樓
首頁
│
桃園房屋
│
桃園房子
│
申請房仲網站
桃園房屋出售
桃園房屋出租
桃園土地出售
桃園土地出租
桃園法拍屋
桃園法拍地
桃園房仲
桃園房地產委託
關鍵字
現在位置:
首頁
>
台南房屋出售
>
安平房屋出售
>
台南市安平大樓-台南市安平區健康路三段
最後更新:4小時內
檢舉不實
│
列印
│
物件留言
|
觀看地圖
台南市安平大樓
台南市安平大樓
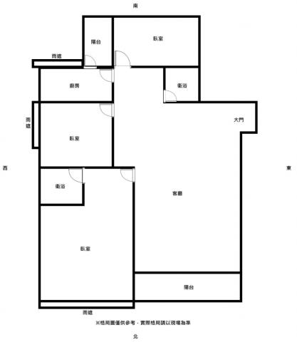
房屋資料
案名
新悅城~亮麗3房平車售1388萬
案號
3143
地址
台南市安平區健康路三段
台南市安平區健康路三段
社區/大樓
新悅城2
最新交易狀態
帶看中
售價
售1458萬
售
1388萬
房屋類型
大樓
總登記坪數
48.04 坪
格局
3房
,2廳,2衛,2陽台,1廚房
屋齡
9年
每坪單價
28.89萬/坪
公設比
車位
坡道式平面車位
座向
無障礙環境
有
法拍屋
本物件不是法拍屋
建物所在樓層
9樓/共27樓
管理費
3147
管委會
有
中庭
有
電梯
有
是否為凶宅
不是
300公尺內嫌惡設施
面前道路
8米路
面寬
縱深
邊間
房屋銷售來源
不動產經紀人/專業仲介
房屋特色
近市政府~平通路~健康三段~新悅城~安平區
1.24hr飯店室管理,設施完善,回家像度假
2.近地方法院、新市政、永華商圈,生活機能佳
3.近亞果渡假碼頭、漁光島,未來潛力佳
4.契稅:91242
坪數說明
建物登記總坪數
48.04
土地登記總坪數
3.47
主建物坪數
22.33
停車位坪數
9.64
附屬建物坪數
3.52
公共設施坪數
12.55
增建坪數
周邊環境
生活機能
鄰近交通
鄰近地標
公園綠地
鄰近學區
億載國小,安平國中
捷運站
房屋聯絡人資訊
聯絡人姓名
陳盈秀
(煩請告知聯絡人,您是在889房屋網看到這則廣告,真摯感恩您的幫忙)
手機
0928-010-990(陳盈秀)
電子信箱
Skype通話
Line加入好友
所屬公司名稱
誠昱不動產企業社(住商成大東興店)
公司電話
0928010990 (LINE)
公司傳真
公司地址
台南市永康區小北路30號
網 址
http://www.台南秀秀房仲網.tw
贊助商廣告
台南市安平大樓
安平大樓-1
安平大樓-2
安平大樓-3
安平大樓-4
安平大樓-5
安平大樓-6
安平大樓-7
安平大樓-8
安平大樓-9
安平大樓-10
安平大樓-11
安平大樓-12
安平大樓-13
安平大樓-14
觀看地圖
到Google查看地圖
到Google查看街景
黃金熱銷物件
永康復華三街
大樓 / 3房
48.98 坪
售798萬
相似物件
東區仁東街
大樓/3房
40.72 坪
售1260萬
安平國平北路
大樓/3房
40.91 坪
售1320萬
安南安富二街
大樓/3房
40 坪
售1398萬
北區公園南路
大樓/3房
46.74 坪
售1298萬
物件留言
請注意,如果您詢問的內容與物件不相符合或是廣告,經過審核,系統將會直接刪除您的發問內容
檢舉不實
安平華廈
│
安平電梯大廈
│
安平電梯大樓
│
安平大樓
│
安平大廈
│
安平電梯華廈
│
安平透天
│
安平透天厝
│
安平透天別墅
│
安平透天店面
│
安平大樓店面
│
安平公寓
│
安平店面
│
安平套房
│
安平辦公室
│
安平預售屋
│
安平豪宅
│
安平樓中樓
│
安平農舍
│
安平國宅
│
安平倉庫
│
安平辦公大樓
│
安平別墅
│
安平電梯別墅
│
安平廠房
│
安平廠辦
│
安平工業廠房
│
安平中古屋
│
安平新成屋
│
安平新房屋
│
安平新房子
│
安平成屋
│
安平建案
│
安平大樓建案
│
安平新建案
│
安平別墅建案
│
安平套房建案
│
安平透天建案
│
安平電梯透天
│
安平房地產
│
安平不動產
│
安平房屋仲介
│
安平房仲
│
●電話:07-7963288 ●電子信箱:
服務信箱
本網站保留一切權利,非經正式書面同意,禁止轉貼節錄。建議瀏覽解析度1024*768。
資料處理中,請稍後...
請注意:此案件已下架