房屋特色 | 【永康_電寓】【1098萬】
裡面就30坪囉/永大路精緻裝潢三房平車美寓
‧
___________________【買一個家】_
‧
永大路上,生活機能良好,平車精裝三房
走路就可以到全聯、菜市場
小孩走路上小學上國中免煩惱
‧
___________________【惜福專銷】_
‧
【開價】售1098萬
【地點】台南市永康區永大路二段
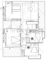
【建坪】41.98坪
【室內】29.79坪
【樓層】電梯19樓的8樓
【房數】3房2廳2衛2陽台
【車位】坡道式平面車位
【屋齡】29年
【座向】朝南
【管理】1460元/月
【臨路】20米路
【學區】永康國小,永康國中
‧
___________________【找誰看屋呢】_
‧
【承辦】林錫福(惜福)/0987673385
【公司】住商不動產/湖美天河加盟店
【經紀】翔陽廣告行銷有限公司
‧
===================【或您有房屋要賣】=
‧
【住商惜福】自民國85年入行至今/獲獎無數
【住商惜福】111年度住商風雲人物/單店TOP1
【住商惜福】歡迎房地不動產/委託從心開始
【住商惜福】您們的一通電話/圓您一屋幸福
【住商惜福】介紹委託/銷售/成交必有酬謝
‧
===================【凡專任委託三個月以上者】=
‧
【1】售屋期間.管理費用由我支付.至成交交屋日為止
【2】房屋需清潔或油漆.費用由我代墊.未售出我吸收
【3】透天別墅空屋者.配合專人駐場.廣告開銷一手包 |
---|