台南透天
首頁
│
桃園房屋
│
桃園房子
│
申請房仲網站
桃園房屋出售
桃園房屋出租
桃園土地出售
桃園土地出租
桃園法拍屋
桃園法拍地
桃園房仲
桃園房地產委託
關鍵字
現在位置:
首頁
>
台南房屋出售
>
北區房屋出售
>
台南透天-台南市北區中華北路一段
最後更新:6小時內
檢舉不實
│
列印
│
物件留言
|
觀看地圖
台南透天
台南透天
房屋資料
案名
好事多/大港國小~透天住家,售1498萬
案號
3755
地址
台南市北區中華北路一段
台南市北區中華北路一段
最新交易狀態
帶看中
售價
售1538萬
售
1498萬
房屋類型
透天_店面
總登記坪數
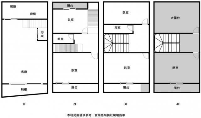
41.02 坪
格局
5房
,2廳,3衛,5陽台,1廚房
屋齡
30年
每坪單價
36.52萬/坪
公設比
車位
騎樓
座向
無障礙環境
沒有
法拍屋
本物件不是法拍屋
建物所在樓層
共3樓
管理費
管委會
沒有
中庭
沒有
電梯
沒有
是否為凶宅
不是
300公尺內嫌惡設施
面前道路
8米路
面寬
縱深
邊間
不是
房屋銷售來源
不動產經紀人/專業仲介
房屋特色
1.近大港國小、社區公園、市場,生活便利
2.5大房、大陽台住商2用多功能
3.屋況好,免整理即可入住
坪數說明
建物登記總坪數
41.02
土地登記總坪數
20.01
主建物坪數
停車位坪數
附屬建物坪數
公共設施坪數
增建坪數
周邊環境
生活機能
鄰近交通
鄰近地標
公園綠地
鄰近學區
大港國小,文賢國中
捷運站
房屋聯絡人資訊
聯絡人姓名
陳盈秀
(煩請告知聯絡人,您是在889房屋網看到這則廣告,真摯感恩您的幫忙)
手機
0928-010-990(陳盈秀)
電子信箱
Skype通話
Line加入好友
所屬公司名稱
誠昱不動產企業社(住商成大東興店)
公司電話
0928010990 (LINE)
公司傳真
公司地址
台南市永康區小北路30號
網 址
http://www.台南秀秀房仲網.tw
贊助商廣告
台南透天
北區透天-1
北區透天-2
北區透天-3
北區透天-4
北區透天-5
北區透天-6
北區透天-7
北區透天-8
北區透天-9
北區透天-10
北區透天-11
北區透天-12
北區透天-13
北區透天-14
北區透天-15
觀看地圖
到Google查看地圖
到Google查看街景
黃金熱銷物件
永康富強路一段
透天_店面 / 5房
68.8 坪
售1838萬
歸仁中山路一段
透天_店面 / 5房
45.98 坪
售899萬
北區南園街
透天_店面 / 5房
25.25 坪
售888萬
相似物件
永康
透天_店面/7房
48.3 坪
售1299萬
北區北區北園街
透天_店面/4房
28.19 坪
售1680萬
佳里佳里區安南路
透天_店面/5房
42.95 坪
售1388萬
安南城西街二段
透天_店面/4房
47.36 坪
售1598萬
北區大港國小住商優
透天_店面/5房
41.021 坪
售1538萬
物件留言
請注意,如果您詢問的內容與物件不相符合或是廣告,經過審核,系統將會直接刪除您的發問內容
檢舉不實
北區華廈
│
北區電梯大廈
│
北區電梯大樓
│
北區大樓
│
北區大廈
│
北區電梯華廈
│
北區透天
│
北區透天厝
│
北區透天別墅
│
北區透天店面
│
北區大樓店面
│
北區公寓
│
北區店面
│
北區套房
│
北區辦公室
│
北區預售屋
│
北區豪宅
│
北區樓中樓
│
北區農舍
│
北區國宅
│
北區倉庫
│
北區辦公大樓
│
北區別墅
│
北區電梯別墅
│
北區廠房
│
北區廠辦
│
北區工業廠房
│
北區中古屋
│
北區新成屋
│
北區新房屋
│
北區新房子
│
北區成屋
│
北區建案
│
北區大樓建案
│
北區新建案
│
北區別墅建案
│
北區套房建案
│
北區透天建案
│
北區電梯透天
│
北區房地產
│
北區不動產
│
北區房屋仲介
│
北區房仲
│
●電話:07-7963288 ●電子信箱:
服務信箱
本網站保留一切權利,非經正式書面同意,禁止轉貼節錄。建議瀏覽解析度1024*768。
資料處理中,請稍後...
請注意:此案件已下架