新北三峽區法拍大樓
首頁
│
桃園房屋
│
桃園房子
│
申請房仲網站
桃園房屋出售
桃園房屋出租
桃園土地出售
桃園土地出租
桃園法拍屋
桃園法拍地
桃園房仲
桃園房地產委託
關鍵字
現在位置:
首頁
>
新北法拍屋
>
三峽法拍屋
>
新北三峽區法拍大樓-新北市三峽區大學路131-2號5樓
最後更新:15小時內
檢舉不實
│
列印
│
物件留言
|
觀看地圖
新北三峽區法拍大樓
新北三峽區法拍大樓
房屋資料
案名
哈佛學園-北大特區*二房附車位
案號
地址
新北市三峽區大學路131-2號5樓
新北市三峽區大學路131-2號5樓
社區/大樓
哈佛學園(濟弘建設)
最新交易狀態
待標中
售價
售1800萬
售
1440萬
房屋類型
大樓
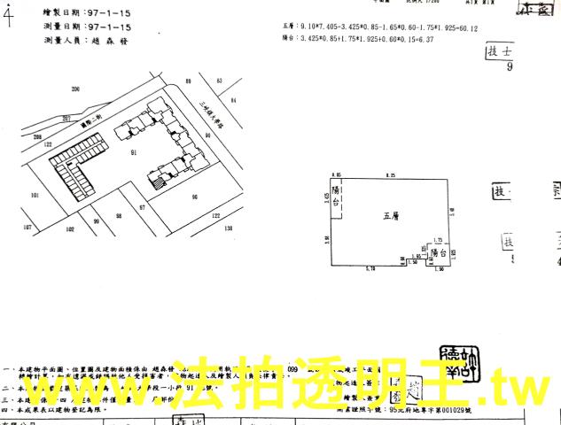
總登記坪數
33.25 坪
格局
2房
,1廳,1衛,2陽台,1廚房
屋齡
17年
每坪單價
43.31萬/坪
公設比
車位
坡道式機械車位(B2-16)
座向
無障礙環境
法拍屋
本物件是法拍屋
拍次 : 預估二拍(1440)
開標日期 : 二拍約114年10月
建物所在樓層
5樓/共14層
管理費
管委會
有
中庭
有
電梯
有
是否為凶宅
300公尺內嫌惡設施
面前道路
面寬
縱深
邊間
是
房屋銷售來源
不動產經紀人/專業仲介
房屋特色
(9/15)一拍價1800萬/@54.1萬~流標!
(10/20)二拍價1440萬/@43.31萬
~哈佛學園~坐落於大學路131-2號5樓
社區位於台北大學旁.步行僅3-5分鐘
好山好水.為全國唯一國立大學重劃區
鄰國際一街及國際二街.低密度開發、低商業氣息
北大特區跨三峽、樹林雙行政區...
因交通便利.吸引外來人口迅速移入
鄰近北二高三峽交流道及國道3號
開車至交流道,車程約5~8分鐘
生活機能(小吃、超商一應俱全)、交通非常便利
坪數說明
建物登記總坪數
33.25
土地登記總坪數
5.39
主建物坪數
18.19
停車位坪數
4.55
附屬建物坪數
1.93
公共設施坪數
8.58
增建坪數
周邊環境
生活機能
鄰近交通
鄰近地標
公園綠地
鄰近學區
捷運站
房屋聯絡人資訊
聯絡人姓名
黃先生
(煩請告知聯絡人,您是在889房屋網看到這則廣告,真摯感恩您的幫忙)
手機
0978-813-259(黃先生)
電子信箱
Skype通話
Line加入好友
所屬公司名稱
金石房屋資產有限公司
公司電話
0978-813259
公司傳真
公司地址
台北市大同區
網 址
http://www.法拍透明王.tw
贊助商廣告
新北三峽區法拍大樓
三峽大樓法拍-1
三峽大樓法拍-2
三峽大樓法拍-3
三峽大樓法拍-4
三峽大樓法拍-5
三峽大樓法拍-6
三峽大樓法拍-7
三峽大樓法拍-8
三峽大樓法拍-9
三峽大樓法拍-10
三峽大樓法拍-11
三峽大樓法拍-12
觀看地圖
到Google查看地圖
到Google查看街景
黃金熱銷物件
蘆洲中原路87號1
大樓 / 2房
56.11 坪
售2656萬
三峽民生街1巷1-
大樓 / 2房
26.3 坪
售2400萬
三峽民生街1巷1-
大樓 / 2房
47.47 坪
售1920萬
板橋南雅東路27-
大樓 / 2房
35.98 坪
售2120萬
汐止南興路66號2
大樓 / 2房
34.48 坪
售1377萬1000元
相似物件
新莊西盛街188號
大樓/0房
46.47 坪
售1368萬
新莊西盛街188號
大樓/4房
46.47 坪
售1368萬
新店安民街205號
大樓/0房
46.08 坪
售1600萬
新莊西盛街188號
大樓/4房
46.47 坪
售1368萬
汐止樟樹一路272
大樓/2房
33.03 坪
售1251萬
物件留言
請注意,如果您詢問的內容與物件不相符合或是廣告,經過審核,系統將會直接刪除您的發問內容
檢舉不實
三峽法拍華廈
│
三峽法拍電梯大廈
│
三峽法拍電梯大樓
│
三峽法拍大樓
│
三峽法拍大廈
│
三峽法拍電梯華廈
│
三峽法拍透天
│
三峽法拍透天厝
│
三峽法拍透天別墅
│
三峽法拍透天店面
│
三峽法拍大樓店面
│
三峽法拍公寓
│
三峽法拍店面
│
三峽法拍套房
│
三峽法拍辦公室
│
三峽法拍豪宅
│
三峽法拍樓中樓
│
三峽法拍農舍
│
三峽法拍國宅
│
三峽法拍辦公大樓
│
三峽法拍別墅
│
三峽法拍電梯別墅
│
三峽法拍廠房
│
三峽法拍廠辦
│
三峽法拍工業廠房
│
三峽法拍中古屋
│
三峽法拍新成屋
│
三峽法拍成屋
│
三峽法拍電梯透天
│
三峽法拍仲介
│
三峽法拍房仲
│
●電話:07-7963288 ●電子信箱:
服務信箱
本網站保留一切權利,非經正式書面同意,禁止轉貼節錄。建議瀏覽解析度1024*768。
資料處理中,請稍後...
請注意:此案件已下架