房屋資料 |
案名 | 店面一樓+B1【牽手社區】忠孝街138號1樓 | 案號 | 114職二47金 |
地址 | 新北市三芝區忠孝街138號1樓新北市三芝區忠孝街138號1樓 | 社區/大樓 | 牽手社區 |
---|
最新交易狀態 | 待標中 | 售價 | 售1064萬售851萬 |
房屋類型 | 店面_一樓 | 總登記坪數 | 87.81 坪 |
格局 | | 屋齡 | 28年 |
---|
每坪單價 | 9.69萬/坪 | 公設比 | |
---|
車位 | 坡道式平面車位 | 座向 | 朝東南 |
---|
無障礙環境 | | 法拍屋 | 本物件是法拍屋 拍次 : 4 開標日期 : 114/10/08
|
---|
建物所在樓層 | B1~1/7 | 管理費 | |
---|
管委會 | 有 | 中庭 | 有 |
電梯 | 有 | 是否為凶宅 | |
300公尺內嫌惡設施 | | 面前道路 | |
面寬 | | 縱深 | |
邊間 | | 房屋銷售來源 | 不動產經紀人/專業仲介 |
---|
房屋特色 | 貸款才是決勝點,提供預審,保證核貸 千萬經理人,接任台灣不動產拍賣協會監事
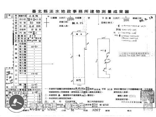
◆門牌:忠孝街138號1樓 ◆主建物:58.68坪 ◆附屬:2.08坪 ◆公設:27.05坪 【1車║坡平式║編號B2-64】 ◆土地:13.79坪 ◆土地現值【住宅區■114年公告現值:22900元/㎡】 ◆房屋用途:RC造/商業用 ◆房屋樓層:所在B1~1樓/總樓層7樓 ◆房屋朝向:朝東南
◎交通動線:公車站(埔坪)、YouBike:三芝兒三公園(三民街) ◎生活機能:公園、自助洗衣店、早午餐、素食、藥局、超商、花店、手搖杯店、小吃、85度C 【法院筆錄】●點交情形→如備註● 1‧1847建號(不含停車位)拍定後點交,1740建號係拍賣不動產應有部分,查無債務人現實占有部分,拍定後不點交。 2‧民國113年12月4日現場查封時,據社區總幹事稱1847建號房屋已許久無人使用,經檢視屋內留有大量雜物、傢俱,建物一層及地下一層相通,有室內梯形成樓中樓,建物一層有後門通往社區中庭,地下一層有後門通往B1停車場。所配賦車位位於B2,編號64號,其上有停放車輛,據社區總幹事稱車位係出租予第三人陳O銘,因停車位係拍賣共有部分,應由全體區分所有權人協議使用分管方法,故不予點交。惟現在實際情形如何,仍請應買人自行查明注意。 3‧投標人應自行查明債務人有無積欠管理費,並注意拍定後民法第826條之1第3項規定之適用問題。《清償債務》
※無人買受時,酌減20%估算,概以執行單位公告為準 第一拍05/07底標價:1661萬 第二拍05/28底標價:1329萬 第三拍06/25底標價:1064萬 第四拍10/08底標價:851萬
王牌經理人,十六年以上法拍經驗豐富 眼光最精準,代標多筆億元以上的案件 在地最深耕,資源豐富廣闊人脈執行力 協助自用者,找到理想實用的房屋圓夢 幫助投資人,創造物件最高投資報酬率 最專業團隊,讓您案件事半功倍又圓滿
【在地深耕,眼光精準,人脈廣闊】 ■產權清楚、案件評估、排除瑕疵事故 ■全程負責、快速交屋、拍後不被騷擾 ■代墊利率6.3%、額度8成、手續費0.3% ■房貸利率2.65%、免排隊、立即撥款 ■法拍屋代墊款、需要資金、歡迎找我
104法拍網|透明房訊|全國最大 ◆規模最大◈歷史最久◆ 全國七處分公司,300多位編制人員 成立於1986年,全國16家法院駐點 ◆專業最強◈全國唯一◆ 全國超過1800場授課專業講習 100坪倉庫,造冊拍賣遺留物 ◆正派經營◈開立發票◆ 營業員(99)登159091號 經紀人(96)年北市經證字01243號 一零四法拍網(股),統編28306523
能看屋的,網頁會註明。一般法拍屋查封之後無法入內參觀,可依據建物平面圖推斷室內格局是否方正,或參考樓上樓下鄰居房屋。(預約看屋留言,一律不回)
|
---|
坪數說明 |
建物登記總坪數 | | 土地登記總坪數 | 13.79 |
---|
主建物坪數 | 58.68 | 停車位坪數 | |
---|
附屬建物坪數 | 2.08 | 公共設施坪數 | 27.05 |
---|
增建坪數 | |
---|
周邊環境 |
生活機能 | | 鄰近交通 | |
---|
鄰近地標 | | 公園綠地 | |
---|
鄰近學區 | | 捷運站 | |
---|
房屋聯絡人資訊 |
聯絡人姓名 | 華國峰(經理) (煩請告知聯絡人,您是在889房屋網看到這則廣告,真摯感恩您的幫忙) |
---|
手機 |  0916-000-104(華國峰(經理)) | 電子信箱 | foreclosure104@yahoo.com |
---|
Skype通話 | | Line加入好友 |
|
---|
所屬公司名稱 | 透明房訊 ,104法拍網(股) |
---|
公司電話 | (02)8262-5555 / (03)337-5555 | 公司傳真 | 全國直營,法拍專家 |
---|
公司地址 | 新北市土城區金城路二段396號11樓 / 桃園市桃園區莊敬路一段346號4樓 |
---|
網 址 | http://www.104法拍屋.tw |
---|