房屋資料 |
案名 | 118秀岡二街107號|秀岡山莊陽光特區A|3層獨棟透天別墅 | 案號 | 台北113辰59571 |
地址 | 新北市新店區秀岡二街107號3層樓新北市新店區秀岡二街107號3層樓 | 社區/大樓 | 秀岡山莊陽光特區 |
---|
最新交易狀態 | 待標中 | 售價 | 售3861萬售3090萬 |
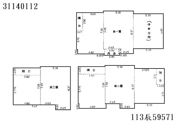
房屋類型 | 透天_別墅_大地坪 | 總登記坪數 | 95.34 坪 |
格局 | 3層樓獨棟透天別墅 | 屋齡 | 23年 |
---|
每坪單價 | 32.41萬/坪 | 公設比 | |
---|
車位 | 室內車庫 | 座向 | |
---|
無障礙環境 | | 法拍屋 | 本物件是法拍屋 拍次 : 4 開標日期 : 114/11/18(二) 09:30
|
---|
建物所在樓層 | 1+2+3樓/共3層樓 | 管理費 | |
---|
管委會 | 有 | 中庭 | 有 |
電梯 | 沒有 | 是否為凶宅 | 不是 |
300公尺內嫌惡設施 | | 面前道路 | |
面寬 | | 縱深 | |
邊間 | 是 | 房屋銷售來源 | 不動產經紀人/專業仲介 |
---|
房屋特色 | 104法拍網代標//透明房訊//法拍讀書會//透明實價網//投資課程㊣㊣㊣業界最大法拍屋專業機構㊣㊣㊣ 法拍個案拍賣資訊均與司法院//台灣金融資產服務股份有限公司//法務部行政執行署拍賣資訊同步刊登,隨時更新!!! ★法拍屋不提供賞屋服務→可透過地政機關建物平面圖、位置圖等資料分析判斷之★
本公司提供之代標服務內容如次: 一、過濾案件:過濾並排除有瑕疵及陷阱案件。 二、評估標價:標的到又標的便宜。 三、包辦點交:和諧、快速交屋。 四、協辦代墊尾款:銀行代墊款及轉為一般貸款之協辦。 本件拍賣資訊節錄: 點交情形→依陽光社區總幹事陳○興稱,本件拍賣標的無人居住使用,106地號為新店區秀岡二街陽光社區內之道路,其範圍為秀岡二街137號至125號前方、69號至79號前方,及95號至107號前方;嗣新北市政府警察局113年6月20日函復經查訪,有不願具名之保全人員稱有一名男性居住,惟與本院113年4月24日查封履勘時之狀況不符,以本院查封履勘時之狀況為準,本件拍定後點交。
土地1‧新北市新店區秀岡四段82地號,空白,353.06㎡,持分全,合計:353.06㎡【第一種住宅區■114年公告現值:37900元/㎡】(重劃前:秀岡段30-246地號) 2‧新北市新店區秀岡四段106地號,空白,1934.52㎡,持分349/10000,合計:67.51㎡【第一種住宅區■114年公告現值:37900元/㎡】(重劃前:秀岡段30-226、42-14地號)建物1‧新北市新店區秀岡二街107號,建號20,3層樓鋼筋混凝土造,1層:113.61,2層:106.35,3層:69.76,陽台:22.32,雨遮:3.15,持分全,合計:315.19㎡ 謄本資料→[謄本]:總坪數95.34坪[主建坪87.64坪,附屬坪7.70坪][住宅停車空間/住家用] 是【大學法律學系的法學士】→1996年畢業 也是【通過國家考試及格執業21年的代書】→2004年迄今 更是【任職律師事務所職司法律相關事務30年的法務經理】→1995年迄今 能精準為您分析判讀法拍個案的觸角,維繫您的個案權益。 專業指名:張世興代書 服務專線:02-2263-1206 行動電話:0986-666-000 公司名稱:一零四法拍網股份有限公司/統一編號28306523 個案物件均依各拍賣機關拍賣公告底價投開標.如當拍未拍定時,除經債權人聲明指定底價外.原則依前拍底價酌減20%估算次拍底價(強制執行法第91條、92條參照) 【第一拍:6029萬114年07月22日流標】 【第二拍:4824萬114年08月19日流標】 【第三拍:3861萬114年09月23日流標】 【第四拍:3090萬114年11月18日待標】 張世興代書→其他法拍屋搜尋網站: H0USEINFO→http://www.沿金標法拍.tw 樂屋網→https://vip.rakuya.com.tw/0986666000/sell |
---|
坪數說明 |
建物登記總坪數 | 95.34 | 土地登記總坪數 | 127.22 |
---|
主建物坪數 | 87.64 | 停車位坪數 | |
---|
附屬建物坪數 | 7.70 | 公共設施坪數 | |
---|
增建坪數 | |
---|
周邊環境 |
生活機能 | | 鄰近交通 | |
---|
鄰近地標 | | 公園綠地 | |
---|
鄰近學區 | | 捷運站 | |
---|
房屋聯絡人資訊 |
聯絡人姓名 | 張世興 (煩請告知聯絡人,您是在889房屋網看到這則廣告,真摯感恩您的幫忙) |
---|
手機 |  0986-666-000(張世興) | 電子信箱 | jeffery1966kimo@gmail.com |
---|
Skype通話 | | Line加入好友 | |
---|
所屬公司名稱 | 一零四法拍網股份有限公司 / 統一編號 28306523 |
---|
公司電話 | 沿金標法拍◆(02)2270-0600 ★ 0986-666-000 張世興代書◆『法拍』購屋首選 | 公司傳真 | (02)2274-0884 |
---|
公司地址 | 新北市土城區金城路二段396號11樓 |
---|
網 址 | http://www.沿金標法拍.tw |
---|