房屋資料 |
案名 | 鶯歌區育才街|三房公寓|近建國國小、捷運陶瓷老街站 | 案號 | 113順131068一114/11/13(四)14:30 |
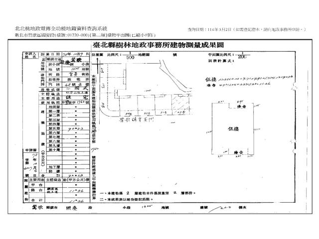
地址 | 新北市鶯歌區育才街88號5樓新北市鶯歌區育才街88號5樓 |
---|
最新交易狀態 | 待標中 | 售價 | 售504萬售410萬 |
房屋類型 | 公寓 | 總登記坪數 | 32.59 坪 |
格局 | 0房 | 屋齡 | 36年 |
---|
每坪單價 | 12.58萬/坪 | 公設比 | |
---|
車位 | 沒有車位 | 座向 | |
---|
無障礙環境 | 沒有 | 法拍屋 | 本物件是法拍屋 拍次 : 第6拍 點交 開標日期 : 2025/11/13(四)14:30
|
---|
建物所在樓層 | 5樓/共5樓 | 管理費 | |
---|
管委會 | 沒有 | 中庭 | 沒有 |
電梯 | 沒有 | 是否為凶宅 | |
300公尺內嫌惡設施 | | 面前道路 | |
面寬 | | 縱深 | |
邊間 | 不是 | 房屋銷售來源 | 不動產經紀人/專業仲介 |
---|
房屋特色 | 【法院筆錄內容】 1‧本件標的為三房一衛一廚兩廳,兩廳部分一作為客廳,一作為神明廳,並有前後陽台,經地政表示本件無增建,拍定後點交。
2‧本件係變價分割共有物拍賣程序,各共有人均有優先承買權,惟若共有人之一到場應買拍得,則其餘共有人無優先承買權。
3‧本件拍賣之建物,經依形式外觀及通常調查所得是否為輻射屋、海砂屋、地震受創、嚴重漏水、火災受損、建物內有非自然死亡或其他足以影響交易之特殊情事等相關資訊,均已於附表載明;如有未記載之資訊,仍請投標人自行斟酌查明,且因拍賣物買受人就物之瑕疵無擔保請求權,故拍定後均不得以拍賣公告未記載而聲請減少價金或聲請撤銷拍定。
4‧本件標的物原所有權人或使用人如有積欠工程受益費及水電、瓦斯費或管理費用,應由拍定人自行查明後與相關單位洽商解決,不得以此為由事後向本院提出爭執或聲明異議。
5‧拍賣之不動產如於查封後經地政機關實施重測,其面積應以重測結果為準,拍定後債權人、債務人、拍定人或其他利害關係人均不得以面積增減請求增減價金或聲請撤銷拍賣。
6‧本院業將查詢所得資訊揭露於拍賣公告上,惟鑑於司法資源有限,且都市計劃之劃定或是否有辦理徵收及協議價購等事,可能伴隨社會經濟情事而迭有異動,應買人於投標前自應向相關主管機關查詢有無使用上或取得上限制之情事,於綜合考量相關風險後再行投標或應買,拍定後均不得以此為由聲請減少價金或聲請撤銷拍定。
7‧刊登於新聞紙或網際網路之公告內容如與本院公告欄張貼之公告不符時,一律以本院公告欄張貼之拍賣公告內容為準。
《分割共有物》
【保證金】
100.8萬 【拍賣履歴】
一拍2025/06/12流標底標價格977.7萬
二拍2025/07/17流標底標價格783萬
三拍2025/08/21流標底標價格628萬
四拍2025/09/11流標底標價格504萬
五拍2025/10/02流標底標價格454萬
六拍2025/11/13流標底標價格410萬
【焦點法拍履歴】
👩🏻⚖️從業二十年以上經驗|競競業業|正派經營
🎯投標準備⇥法拍流程說明|標單填寫|案件現場勘查有無特殊情事|成本評估分析
💰銀行貸款⇥法拍物件估價|投標人財力評估|銀行代墊款協助辦理|最高八成
🏡拍定得標⇥強制執行書狀、履勘陳報書狀往返|債務人搬遷協商|遺留物造冊查估
🎁委託代標⇥免費|委託代標未得標⇥免費
🏢鑫創資產管理有限公司
顏麗杏0911-965339營業員證號:(101)登字第212862號
連真甄0909-031993營業員證號:(101)登字第192002號
更多物件☞焦點法拍
經紀人李彥槿:109北市經證字第02110號 |
---|
坪數說明 |
建物登記總坪數 | 32.59 | 土地登記總坪數 | 8.07 |
---|
主建物坪數 | 27.38 | 停車位坪數 | |
---|
附屬建物坪數 | 3.44 | 公共設施坪數 | 1.77 |
---|
增建坪數 | |
---|
周邊環境 |
生活機能 | | 鄰近交通 | |
---|
鄰近地標 | 近建國國小、捷運陶瓷老街站、鶯歌陶瓷老街 | 公園綠地 | |
---|
鄰近學區 | | 捷運站 | |
---|
房屋聯絡人資訊 |
聯絡人姓名 | 小顏 (煩請告知聯絡人,您是在889房屋網看到這則廣告,真摯感恩您的幫忙) |
---|
手機 |  0911-965-339(小顏) | 電子信箱 | leysen137@gmail.com |
---|
Skype通話 | | Line加入好友 |
|
---|
所屬公司名稱 | 鑫創資產管理有限公司 |
---|
公司電話 | | 公司傳真 | |
---|
公司地址 | 新北市新莊區中環路二段423號一樓 |
---|
網 址 | http://www.1314home.tw |
---|