| 房屋資料 |
| 案名 | 凶宅【一方城心】頭興街126號13樓 | 案號 | 113職四218金 |
| 地址 | 新北市新莊區頭興街126號13樓新北市新莊區頭興街126號13樓 | 社區/大樓 | 一方城心(合嘉建設) |
|---|
| 最新交易狀態 | 待標中 | 售價 | 售1536萬售1229萬 |
| 房屋類型 | 大樓 | 總登記坪數 | 30.19 坪 |
| 格局 | 2房,2廳,1衛 | 屋齡 | 12年 |
|---|
| 每坪單價 | 40.71萬/坪 | 公設比 | |
|---|
| 車位 | 沒有車位 | 座向 | 朝北 |
|---|
| 無障礙環境 | 有 | 法拍屋 | 本物件是法拍屋 拍次 : 4 開標日期 : 113/12/4
|
|---|
| 建物所在樓層 | 13/13 | 管理費 | |
|---|
| 管委會 | 有 | 中庭 | 有 |
| 電梯 | 有 | 是否為凶宅 | 自殺 |
| 300公尺內嫌惡設施 | | 面前道路 | |
| 面寬 | | 縱深 | |
| 邊間 | 是 | 房屋銷售來源 | 不動產經紀人/專業仲介 |
|---|
| 房屋特色 | 貸款才是決勝點,提供預審,保證核貸 千萬經理人,接任台灣不動產拍賣協會監事
◆門牌:頭興街126號13樓 ◆主建物:18.06坪 ◆附屬:2.76坪 ◆公設:9.37坪 ◆土地:3.59坪 ◆土地現值【商業區■113年公告現值:310000元/㎡】 ◆房屋用途:RC造/集合住宅 ◆房屋樓層:所在13樓/總樓層13樓 ◆房屋朝向:朝北
※注意:事故屋/凶宅/上吊 (須備全額現金,銀行無代墊尾款,若需代墊尾款請告知,公司可提供服務)
◎房屋格局:2房/2廳/1衛(此格局為原建設規劃或內政部實價登錄,僅供參考,以現況為準!) ◎交通動線:位頭前重劃區,中原東路89巷口,近頭前國小,交通動線良好 ◎捷運站:幸福站 ◎公車站牌:距公車站牌步行約4~6分鐘。中原東路站,可搭乘615、803。思源頭前路口站,可搭乘920、920A去程不繞龜山、920副線、982、982區間車 ◎生活機能:距頭前運動公園(防災公園)步行約5分鐘、捷運環狀線幸福站步行約10分鐘 ◎鄰近學校:頭前國小、頭前國中 【法院筆錄】●點交情形→如備註● 1‧本件建物於112年10月20日現場執行時,由債權人代理人會同鎖匠、警員、地政人員及債務人之遺產管理人導往現場履勘、測量,據管委會人員陳稱本件債務人有非自然死亡情事,並向管區報案處理,事情約發生在111年11月間。管委會人員陳稱目前本棟大樓各住戶無增建情事,因此告知地政人員本件暫無需測量,另請鎖匠開鎖,鎖匠稱本件門鎖為電子鎖,自上午9:30至中午12:20仍無法開啟,而管委會人員陳稱本件房屋自債務人非自然死亡情事發生後就沒有人進出,且房屋已積欠管理費約有一年了。本建物據大樓管理員陳稱自債務人非自然死亡後已無人進出,如查報屬實,拍定後點交;如查報不實,有第三人於查封前合法占用,則拍定後不點交,應買人應自行查明使用情形。又如有第三人於查封前合法占有者,債務人或第三人應於本件拍定前向法院提出合法占用權源之證明文件,如陳述不實,應負使公務員登載不實及損害債權罪之刑責,經法院查明確涉有上述罪嫌,即移送檢察機關偵辦。 2‧本件建物現況調查時,據管委會人員現場陳稱債務人非自然死亡,經法院函詢警察局,警察局函復資料債務人謝OO於拍賣標的之浴室上吊,請應買人於投標前務必審慎評估此一因素,得標後不得主張房屋係凶宅而主張撤拍。有關強制執行法第77條第1項第2款之調查事項,由於債權人及債務人對拍賣各有不同考量,雙方願意揭露之資訊未必完全真實,依不動產鑑定報告書所載,經查詢公開資訊網站,查無海砂屋、輻射屋及震災之列管,然因法院欠缺完整資訊且無相關鑑定等專業技能,故無法保證本件拍賣標的絕無海砂屋、輻射屋、地震受創、嚴重漏水、火災受損情形或無其他足以影響本件不動產交易價值之特殊情事(如:工業住宅、嫌惡設施…等)。而法院已就卷內現場執行情況及不動產鑑定報告等相關資料揭示於前,以供應買人參酌。惟應買人仍應於投標前自行向相關機關、不動產仲介業者或周遭四鄰查明有無前開情事,並於投標前審慎評估房屋狀況以決定是否參與投標應買,應買人於投標前仍應自行查勘拍賣標的物,多方蒐集資訊,若得標後不得以有前開情形不明為由而異議或主張物之瑕疵(拍賣物買受人就物之瑕疵無擔保請求權)而主張減價或拍賣無效或對主張撤銷拍賣程序,如有不同意者,請慎重考慮勿投標,投標應買視為同意此拍賣條件。《拍賣抵押物》
※無人買受時,酌減20%估算,概以執行單位公告為準 第一拍08/28底標價:2400萬 第二拍09/25底標價:1920萬 第三拍10/16底標價:1536萬 第三拍12/04底標價:1229萬
王牌經理人,十六年以上法拍經驗豐富 眼光最精準,代標多筆億元以上的案件 在地最深耕,資源豐富廣闊人脈執行力 協助自用者,找到理想實用的房屋圓夢 幫助投資人,創造物件最高投資報酬率 最專業團隊,讓您案件事半功倍又圓滿
【在地深耕,眼光精準,人脈廣闊】 ■產權清楚、案件評估、排除瑕疵事故 ■全程負責、快速交屋、拍後不被騷擾 ■代墊利率6.3%、額度8成、手續費0.3% ■房貸利率2.65%、免排隊、立即撥款 ■法拍屋代墊款、需要資金、歡迎找我
104法拍網|透明房訊|全國最大 ◆規模最大◈歷史最久◆ 全國七處分公司,300多位編制人員 成立於1986年,全國16家法院駐點 ◆專業最強◈全國唯一◆ 全國超過1800場授課專業講習 100坪倉庫,造冊拍賣遺留物 ◆正派經營◈開立發票◆ 營業員(99)登159091號 經紀人(96)年北市經證字01243號 一零四法拍網(股),統編28306523
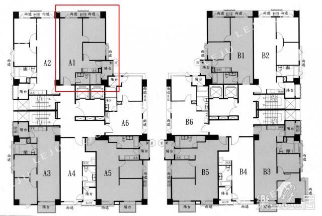
能看屋的,網頁會註明。一般法拍屋查封之後無法入內參觀,可依據建物平面圖推斷室內格局是否方正,或參考樓上樓下鄰居房屋。(預約看屋留言,一律不回)
|
|---|
| 坪數說明 |
| 建物登記總坪數 | | 土地登記總坪數 | 3.59 |
|---|
| 主建物坪數 | 18.06 | 停車位坪數 | |
|---|
| 附屬建物坪數 | 2.76 | 公共設施坪數 | 9.37 |
|---|
| 增建坪數 | |
|---|
| 周邊環境 |
| 生活機能 | | 鄰近交通 | |
|---|
| 鄰近地標 | | 公園綠地 | |
|---|
| 鄰近學區 | | 捷運站 | |
|---|
| 房屋聯絡人資訊 |
| 聯絡人姓名 | 經理:華國峰 / 特助:李佩玟 (煩請告知聯絡人,您是在889房屋網看到這則廣告,真摯感恩您的幫忙) |
|---|
| 手機 |  0916-000-104(經理:華國峰 / 特助:李佩玟) | 電子信箱 | foreclosure104@yahoo.com |
|---|
| Skype通話 | | Line加入好友 |
|
|---|
| 所屬公司名稱 | 透明房訊 ,104法拍網(股) |
|---|
| 公司電話 | (02)8262-5555 / (03)337-5555 | 公司傳真 | 全國直營,法拍專家 |
|---|
| 公司地址 | 新北市土城區金城路二段396號11樓 / 桃園市桃園區莊敬路一段346號4樓 |
|---|
| 網 址 | http://www.104法拍屋.tw |
|---|