房屋資料
案名 板橋區中山路二段【萬歲新天地】近捷運江子翠站、興隆市場 案號 114日105960 115/1/13(二) 14:30
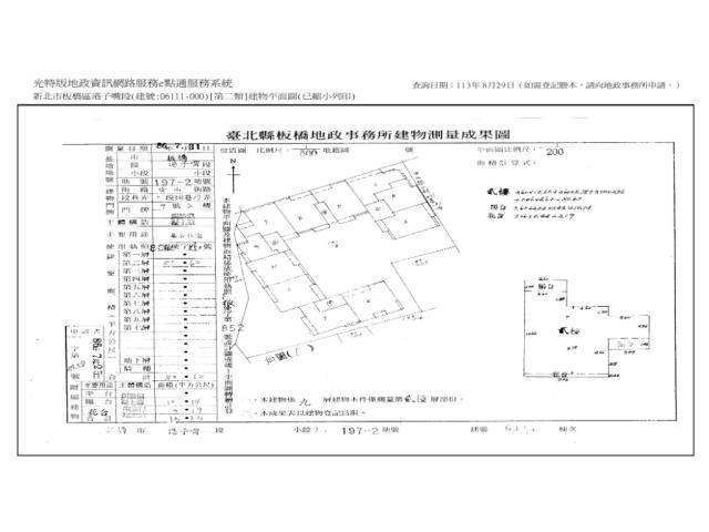
地址 新北市板橋區中山路二段531巷17弄9號2樓社區/大樓萬歲新天地
最新交易狀態待標中售價
2280萬
房屋類型 大樓 總登記坪數 45.8 坪
格局0房屋齡28年
每坪單價49.78萬/坪公設比
車位座向
無障礙環境法拍屋 本物件是法拍屋
拍次 : 第1拍 部分點交
開標日期 : 2026/1/13(二) 14:30
建物所在樓層2樓/共9樓管理費
管委會中庭
電梯 是否為凶宅
300公尺內嫌惡設施 面前道路
面寬 縱深
邊間房屋銷售來源不動產經紀人/專業仲介
房屋特色

【法院筆錄內容】



1‧本件標的之6111建號建物於本院查封時,債務人表示房屋係自住,拍定後點交;然標的6068建號建物於地籍謄本註明之主要用途為管理員室,且其所有權為應有部分,拍定後不點交。另於本院查封時債務人表明有停車位,位於地下室之B2.28號,惟停車位未有獨立產權,應由全體區分所有權人協議使用分管方法,應買人應自行向管委會查明區分所有權人分管契約或公寓大廈規約等,拍定後不點交。



2‧倘拍定後須通知優先承買權人行使優先承買權,可能需相當時日(數月至數年不等)。若有優先承買權爭議,於該爭議確定時,始核發權利移轉證書。



3‧經查詢相關機關,本件標的經初步調查無海砂屋、輻射屋、地震受創、火災受損及發生非自然死亡等情形。惟因調查限度難以查明,相關調查結果及使用限制請投標人自行向主管機關查明並評估衡量,綜合考量相關風險再行投標。拍定後,債權人、債務人、拍定人或其他關係人,均不得以本院就上開事由所載使用情形不明或未盡調查能事等理由,請求增減價金或聲請撤銷拍賣。



4‧刊登於新聞紙之公告、本院郵寄之通知、網路公告或以其他方式或管道標示之內容,如與本院公告欄張貼之公告內容不符時,一律以本院公告欄張貼之拍賣公告內容為準。



5‧本件標的物原所有權人或使用人如有積欠工程受益等費用,應由拍定人自行查明後與相關單位洽商解決。



6‧為維護交易秩序,保障當事人合理權益:(1)若有停止、撤回、撤銷、延緩強制執行之事由,而其事由確實發生於本案標的拍定日或拍定日前,縱已拍定,本院亦得撤銷拍定,無息返還已經繳交之款項,應買人、拍定人、債權人、債務人均不得異議,不同意之應買人請勿參與本案投標,請另行透過其他方式或管道購買不動產。(2)因虛偽、未據實、及時陳述及提供資料、隱匿資料、偽造文書、詐欺等故意或過失行為(均包括口頭說明及書面文件),致新北地院及所屬承辦人員,受有損害賠償之請求,債權人、債務人應對新北地院及其所屬承辦人員所受之損害,負擔賠償責任。(3)拍定人持本院核發之權利移轉證書,若有無法辦理拍賣標的所有權移轉登記之情形,得由本院撤銷拍定,無息退還拍定人繳交款項,應買人、拍定人、債權人、債務人均不得異議,不同意之應買人請勿參與投標,請另行透過其他方式或管道購買不動產。



7‧本拍賣公告所載不動產面積,係以查封時之謄本為依據,如地政機關於查封後實施重測,則其面積應以重測結果為準。經拍定後,債權人、債務人、拍定人或其他關係人,均不得以重測後面積與公告不符,聲請增減價金或撤銷拍賣。



《拍賣抵押物》



【保證金】

456萬


【拍賣履歴】

一拍2026/01/13底標價格2280萬

二拍底標價格1824萬

三拍底標價格1459.2萬

四拍底標價格1167.4萬



【焦點法拍履歴】

👩🏻‍⚖️從業二十年以上經驗|競競業業|正派經營

🎯投標準備⇥法拍流程說明|標單填寫|案件現場勘查有無特殊情事|成本評估分析

💰銀行貸款⇥法拍物件估價|投標人財力評估|銀行代墊款協助辦理|最高八成

🏡拍定得標⇥強制執行書狀、履勘陳報書狀往返|債務人搬遷協商|遺留物造冊查估

🎁委託代標⇥免費|委託代標未得標⇥免費



🏢鑫創資產管理有限公司

顏麗杏0911-965339營業員證號:(101)登字第212862號

連真甄0909-031993營業員證號:(101)登字第192002號

更多物件☞焦點法拍



經紀人李彥槿:109北市經證字第02110號

坪數說明
建物登記總坪數45.8土地登記總坪數6.85
主建物坪數24.39停車位坪數
附屬建物坪數4.03公共設施坪數17.38
增建坪數
周邊環境
生活機能鄰近交通
鄰近地標近捷運江子翠站、興隆市場、河濱公園公園綠地
鄰近學區捷運站江子翠
房屋聯絡人資訊
聯絡人姓名小顏
(煩請告知聯絡人,您是在889房屋網看到這則廣告,真摯感恩您的幫忙)
手機
0911-965-339(小顏)
電子信箱leysen137@gmail.com
Skype通話 Line加入好友 Line加入好友
所屬公司名稱鑫創資產管理有限公司
公司電話公司傳真
公司地址新北市新莊區中環路二段423號一樓
網 址http://www.1314home.tw

贊助商廣告
新北板橋法拍大樓
板橋拍賣大樓-1
板橋拍賣大樓-1
板橋拍賣大樓-2
板橋拍賣大樓-2
板橋拍賣大樓-3
板橋拍賣大樓-3
板橋拍賣大樓-4
板橋拍賣大樓-4
板橋拍賣大樓-5
板橋拍賣大樓-5
板橋拍賣大樓-6
板橋拍賣大樓-6
板橋拍賣大樓-7
板橋拍賣大樓-7
板橋拍賣大樓-8
板橋拍賣大樓-8
板橋拍賣大樓-9
板橋拍賣大樓-9
板橋拍賣大樓-10
板橋拍賣大樓-10
板橋拍賣大樓-11
板橋拍賣大樓-11
板橋拍賣大樓-12
板橋拍賣大樓-12
板橋拍賣大樓-13
板橋拍賣大樓-13
觀看地圖
黃金熱銷物件
相似物件

物件留言
請注意,如果您詢問的內容與物件不相符合或是廣告,經過審核,系統將會直接刪除您的發問內容
等待圖示
檢舉不實
等待圖示
●電話:07-7963288  ●電子信箱:服務信箱

本網站保留一切權利,非經正式書面同意,禁止轉貼節錄。建議瀏覽解析度1024*768。