房屋資料
案名 健行大學【東興國中】景觀3房車位電梯華廈 案號
地址 桃園市中壢區健行大學、東興國中、中壢火車站
最新交易狀態帶看中售價
1298萬
房屋類型 大樓_華廈 總登記坪數 39.63 坪
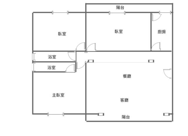
格局3房,2廳,2衛,2陽台,1廚房屋齡31年
每坪單價32.75萬/坪公設比約15%
車位坡道式平面車位座向朝西南
無障礙環境法拍屋 本物件不是法拍屋
建物所在樓層9樓/地上9層/地下1層管理費2377 元/月
管委會中庭
電梯 是否為凶宅 不是
300公尺內嫌惡設施 面前道路 約8米
面寬 縱深
邊間不是房屋銷售來源不動產經紀人/專業仲介
房屋特色

◇◆◇歡迎蒞臨◇◆◇更新最新房屋土地廠房資訊



◎建築完成日:83年08月0日



◎基地總面積:約691.21坪/持分8.61坪



◎社區總戶數:約96戶



◎社區公設比:約15%



1.【交通說明】:龍岡路一段公車站、中壢火車站、中壢新屋交流道



2.【購物說明】:和平市場、健行商圈、全聯福利中心、大潤發賣場、家樂福賣場、中原商圈



3.【訴求重點】:有景觀、客餐廳寬敞、室內30坪、前後陽台、衛浴皆有對外窗、低公設比、戶數單純96戶、一層2戶/1部電梯、天然瓦斯、步行皆可到國小國中大學、地點超級好、鄰近和平市場/家樂福賣場/全聯福利中心/信義國小/大潤發賣場/健行科技大學/莒光公園/中原商圈/中壢火車站/捷運A23中壢站(預定)/東興國中/林森國小/中壢體育園區等...、生活與交通極為方便~~~



4.【房屋座向】:客廳陽台→朝西南//房屋大門→朝//社區大門→朝西北



☆★☆看屋0926-179-771或LINEID:s0926179771【曾先生(宇生)】→告知物件→預約時間☆★☆



☆★☆即日起本廣告僅限貼文7日內有效,委託到期日及物件售出後此廣告自動作廢☆★☆

坪數說明
建物登記總坪數39.63土地登記總坪數8.61
主建物坪數26.27停車位坪數
附屬建物坪數4.27公共設施坪數9.09
增建坪數
周邊環境
生活機能和平市場、健行商圈、全聯福利中心、大潤發賣場、家樂福賣場、中原商圈鄰近交通龍岡路一段公車站、中壢火車站、中壢新屋交流道
鄰近地標東興國中、中壢火車站公園綠地莒光公園
鄰近學區信義國小,東興國中,中壢家商,中原大學,健行科技大學捷運站
房屋聯絡人資訊
聯絡人姓名曾宇生
(煩請告知聯絡人,您是在889房屋網看到這則廣告,真摯感恩您的幫忙)
手機
0926-179-771(曾宇生)
電子信箱yushengtseng0126@gmail.com
Skype通話 Line加入好友 Line加入好友
所屬公司名稱◤ 中信房屋 ◢ 聯絡人:曾宇生 (100)登字第186347號 經紀人:99桃縣字第00469號
公司電話0926-179-771 曾宇生公司傳真0926-179-771 曾宇生
公司地址桃園市中壢區環北路164號【 A21環北捷運站旁 】
網 址http://www.桃園土地買賣.tw

贊助商廣告
大桃園廠房,大桃園工業地,大桃園工業地廠房
桃園廠房出租,桃園工業地,桃園廠房工業地
桃園大樓
桃園中壢大樓-1
桃園中壢大樓-1
桃園中壢大樓-2
桃園中壢大樓-2
桃園中壢大樓-3
桃園中壢大樓-3
桃園中壢大樓-4
桃園中壢大樓-4
桃園中壢大樓-5
桃園中壢大樓-5
桃園中壢大樓-6
桃園中壢大樓-6
桃園中壢大樓-7
桃園中壢大樓-7
桃園中壢大樓-8
桃園中壢大樓-8
桃園中壢大樓-9
桃園中壢大樓-9
桃園中壢大樓-10
桃園中壢大樓-10
桃園中壢大樓-11
桃園中壢大樓-11
桃園中壢大樓-12
桃園中壢大樓-12
桃園中壢大樓-13
桃園中壢大樓-13
桃園中壢大樓-14
桃園中壢大樓-14
觀看地圖
黃金熱銷物件
相似物件

物件留言
請注意,如果您詢問的內容與物件不相符合或是廣告,經過審核,系統將會直接刪除您的發問內容
等待圖示
檢舉不實
等待圖示
●電話:07-7963288  ●電子信箱:服務信箱

本網站保留一切權利,非經正式書面同意,禁止轉貼節錄。建議瀏覽解析度1024*768。