房屋資料
案名 汐止東湖菜市場商圈法拍屋,瓏山林社區獨棟別墅附車位 案號 一拍【113快37327】
地址 新北市汐止區忠三街39巷53號4層樓獨棟透天附車位,法拍屋代標 專線0913-303663 +LINE社區/大樓瓏山林(聯邦建設)
最新交易狀態待標中售價
4130萬
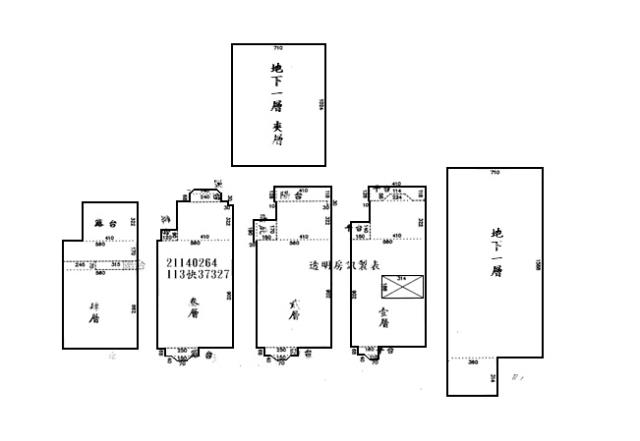
房屋類型 透天_別墅_金龍湖風景區 總登記坪數 165.13 坪
格局4房,3廳,3衛,4陽台,1廚房屋齡35年
每坪單價25.01萬/坪公設比
車位48號座向
無障礙環境法拍屋 本物件是法拍屋
拍次 : 一拍
開標日期 : 115/1/8(四)
建物所在樓層4層樓獨棟透天別墅管理費每月2000元(含垃圾處理費)
管委會中庭
電梯 未知 是否為凶宅 不是
300公尺內嫌惡設施 面前道路
面寬 縱深
邊間房屋銷售來源不動產經紀人/專業仲介
房屋特色
♛一零四法拍網(創立40週年)業界最大/專業團隊/全省服務/值得託付~

♠︎專業代標『吳先生』全程為您服務♠︎代標專線☎0913303663點入+line

💥💥💥刊●點交情形→詳如備註●

1‧3344建號拍定後點交,3354建號係拍賣不動產應有部分,拍定後不點交。

2‧民國113年10月9日現場調查時,經開鎖入內檢視為空屋,無人使用,車位編號為48號,目前無人使用。惟現在實際情形如何,仍請應買人自行查明注意。

3‧拍賣標的經臺灣臺中地方法院113年度聲扣字第3號刑事裁定准予扣押,臺中市政府警察局刑事警察大隊以113年1月15日中市警刑七字第1130002192D號函辦理禁止處分之登記在案。本件拍定後經拍定人依法繳足價金,本院核發權利移轉證書後,將依最高法院107年度台抗字第445號裁定意旨,發函通知禁止處分機關函請地政機關塗銷禁止處分登記,俾利拍定後辦理移轉登記,以達保全沒收、追徵同時兼顧交易安全維護之目的,請投標人特別注意。

4‧投標人應自行查明債務人有無積欠管理費,並注意拍定後民法第826條之1第3項規定之適用問題。

《清償票款》

[他項權利:拍後塗銷]

特別提醒謄本資料:3344建號另有附屬建物48.44㎡,與公告不符,請應買人自行確認注意!

[謄本]:總坪數165.13坪[主建坪127.51坪,附屬坪14.65坪,停車坪22.46坪(建號:3354),公設坪0.51坪(建號:3356)][RC造/住家用]登內容以公告機關為準請投標人注意🔥🔥🔥

法院筆錄:

⚖️拍賣機關公告

📣司法院法拍屋公告📣國有財產署標售不動產資訊📣台灣金服含未辦繼承法拍物件

📣法拍屋拍定價公告📣法務部行政執行署法拍物件📣產權清楚☆強制執行法【77條”81條】

🔎法拍一點不燒腦~~眉角全都在這邊~~懶人包裡報您知~~

📣📣104法拍網/透明房訊/法拍屋,土地全省最新拍賣資訊

📣台北法拍屋快搜📣新北法拍屋快搜📣桃園法拍屋快搜📣台中法拍屋快搜

♠北區熱門法拍屋♠北區法拍屋精選♠樂屋網

⏳法拍屋代標流程~~

1.銀行代墊尾款:(最高可貸八成)2.現場合理價格評估

3.得標協助辦理過戶4.點交全程不用陪同

5.和諧交付等您入住6.未得標不收取費用

☛法拍代標找專業~☛投標必中下決心~☛過了這村沒那店~☛別讓資金睡著了

❤誠摯讓您感受最優質的代標全程服務

自備2成輕鬆成家~特約銀行核撥快速~只有買方安心選購~彈性出價理財首選~

❦免費諮詢可+line❦望您來電問透透❦消除疑慮再委託❦收費契約最透明

❦❦❦❦❦❦❦❦❦❦❦❦❦❦❦❦❦❦❦❦❦❦❦❦❦❦❦❦❦

雙北助理專線☎02-22650614桃園助理專線☎03-3293994全省☎0913303663

🏘️經紀業:財欣不動產管理顧問有限公司統一編號:22857204

✍經紀人:(97)年北市經證字001562號

💼營業員:(98)登字第133601號

❦❦❦❦❦❦❦❦❦❦❦❦❦❦❦❦❦❦❦❦❦❦❦❦❦❦❦❦❦❦❦❦❦❦❦❦

生活e點通~

📣財政部新青安成家📣全國地政電子謄本系統📣地籍圖便民服務📣房地合一專區

📣台北捷運路線圖📣新北捷運路線圖📣桃園捷運路線圖📣台中捷運路線圖
坪數說明
建物登記總坪數165.13土地登記總坪數55.14
主建物坪數127.51停車位坪數22.46
附屬建物坪數14.65公共設施坪數0.51
增建坪數
周邊環境
生活機能內溝溪生態園區,東湖菜市場大湖公園,金龍湖.,老鷹尖,柚子山,翠湖,湖光市場,康寧醫院,東湖生活圈,東湖國小,東湖國中,內湖科技園區,南港科技園區,東湖日湖百貨,哈拉影城商圈,內湖三軍總醫院,總戶數約1442戶,管理費每月2000元鄰近交通捷運東湖站,國道1號汐止交流道,國道3號汐止交流道,公車,社區大門旁就是公車總站,可搭乘281,藍12,小S,S1,汐止社區巴士7社后線,汐止社區巴士8八連線等號公車
鄰近地標公園綠地
鄰近學區捷運站
房屋聯絡人資訊
聯絡人姓名吳先生
(煩請告知聯絡人,您是在889房屋網看到這則廣告,真摯感恩您的幫忙)
手機
0913-303-663(吳先生)
電子信箱dlw1944@gmail.com
Skype通話 Line加入好友 Line加入好友
所屬公司名稱財欣不動產管理顧問有限公司/專業代標/營業員(97)經證字號001562
公司電話專業代標 吳先生 0913303663 02-22650614 03-3293994公司傳真02-22740884 03-3343929
公司地址新北市土城區金城路二段396號11樓/桃園市莊敬路一段346號4樓/統編:22857204
網 址http://www.熱門法拍屋.tw

贊助商廣告
汐止區法拍透天
汐止法拍透天-1
汐止法拍透天-1
汐止法拍透天-2
汐止法拍透天-2
汐止法拍透天-3
汐止法拍透天-3
汐止法拍透天-4
汐止法拍透天-4
汐止法拍透天-5
汐止法拍透天-5
汐止法拍透天-6
汐止法拍透天-6
汐止法拍透天-7
汐止法拍透天-7
汐止法拍透天-8
汐止法拍透天-8
汐止法拍透天-9
汐止法拍透天-9
汐止法拍透天-10
汐止法拍透天-10
黃金熱銷物件
相似物件

物件留言
請注意,如果您詢問的內容與物件不相符合或是廣告,經過審核,系統將會直接刪除您的發問內容
等待圖示
檢舉不實
等待圖示
●電話:07-7963288  ●電子信箱:服務信箱

本網站保留一切權利,非經正式書面同意,禁止轉貼節錄。建議瀏覽解析度1024*768。