高雄左營大樓
首頁
│
桃園房屋
│
桃園房子
│
申請房仲網站
桃園房屋出售
桃園房屋出租
桃園土地出售
桃園土地出租
桃園法拍屋
桃園法拍地
桃園房仲
桃園房地產委託
關鍵字
現在位置:
首頁
>
高雄房屋出售
>
左營房屋出售
>
高雄左營大樓-高雄市左營區桃子園路
最後更新:5小時內
檢舉不實
│
列印
│
物件留言
|
觀看地圖
高雄左營大樓
高雄左營大樓
房屋資料
案名
近美術館|悅誠|兩房平面車位
案號
地址
高雄市左營區桃子園路
高雄市左營區桃子園路
最新交易狀態
帶看中
售價
售
1138萬
房屋類型
大樓
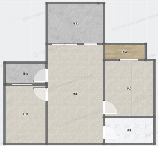
總登記坪數
31.115 坪
格局
2房
,2廳,1衛,2陽台,1廚房
屋齡
5年
每坪單價
36.57萬/坪
公設比
車位
坡道式平面車位
座向
朝西北
無障礙環境
有
法拍屋
本物件不是法拍屋
建物所在樓層
5樓/共18樓
管理費
2037元/月
管委會
有
中庭
有
電梯
有
是否為凶宅
不是
300公尺內嫌惡設施
面前道路
15米
面寬
縱深
邊間
房屋銷售來源
不動產經紀人/專業仲介
房屋特色
★中庭廣達870坪,專屬的自然水景森林
★五星級飯店式管理、多元公共設施、管理費便宜
★鬧中取靜、去巨蛋、美術館皆方便
★未來增值空間大、投資、自住首選
★車位超好停、是邊格平車
-------------------------------------
興富發-悅誠
總戶數702戶
土地持分第四種住宅區
陽台3.352坪
雨遮0.672坪
坪數說明
建物登記總坪數
31.115
土地登記總坪數
3.558
主建物坪數
13.017
停車位坪數
4.872
附屬建物坪數
4.023
公共設施坪數
9.203
增建坪數
周邊環境
生活機能
佳
鄰近交通
便捷
鄰近地標
左營軍港
公園綠地
社區公園
鄰近學區
永清國小
捷運站
巨蛋
房屋聯絡人資訊
聯絡人姓名
鍾溫雅(阿雅)
(煩請告知聯絡人,您是在889房屋網看到這則廣告,真摯感恩您的幫忙)
手機
0935-311-298(鍾溫雅(阿雅))
電子信箱
myhome188@yahoo.com.tw
Skype通話
Line加入好友
所屬公司名稱
永義房屋 高雄美術擁樂加盟店
公司電話
07-3150808 或0935-311-298
公司傳真
公司地址
高雄市鼓山區美術東二路530號
網 址
http://www.168吉屋.tw
贊助商廣告
高雄左營大樓
高雄大樓-1
高雄大樓-2
高雄大樓-3
高雄大樓-4
高雄大樓-5
高雄大樓-6
高雄大樓-7
高雄大樓-8
高雄大樓-9
高雄大樓-10
高雄大樓-11
高雄大樓-12
高雄大樓-13
高雄大樓-14
高雄大樓-15
觀看地圖
到Google查看地圖
到Google查看街景
黃金熱銷物件
三民區忠孝一路
大樓 / 2房
16 坪
售4580萬
相似物件
苓雅新光路
大樓/3房
40.53 坪
售998萬
茄萣茄萣金鑾路傳統
大樓/4房
47.068 坪
售1250萬
前鎮瑞興街
大樓/3房
41.533 坪
售998萬
岡山竹圍北街
大樓/2房
33.4 坪
售1268萬
物件留言
請注意,如果您詢問的內容與物件不相符合或是廣告,經過審核,系統將會直接刪除您的發問內容
檢舉不實
左營華廈
│
左營電梯大廈
│
左營電梯大樓
│
左營大樓
│
左營大廈
│
左營電梯華廈
│
左營透天
│
左營透天厝
│
左營透天別墅
│
左營透天店面
│
左營大樓店面
│
左營公寓
│
左營店面
│
左營套房
│
左營辦公室
│
左營預售屋
│
左營豪宅
│
左營樓中樓
│
左營農舍
│
左營國宅
│
左營倉庫
│
左營辦公大樓
│
左營別墅
│
左營電梯別墅
│
左營廠房
│
左營廠辦
│
左營工業廠房
│
左營中古屋
│
左營新成屋
│
左營新房屋
│
左營新房子
│
左營成屋
│
左營建案
│
左營大樓建案
│
左營新建案
│
左營別墅建案
│
左營套房建案
│
左營透天建案
│
左營電梯透天
│
左營房地產
│
左營不動產
│
左營房屋仲介
│
左營房仲
│
●電話:07-7963288 ●電子信箱:
服務信箱
本網站保留一切權利,非經正式書面同意,禁止轉貼節錄。建議瀏覽解析度1024*768。
資料處理中,請稍後...
請注意:此案件已下架